Ok merci pour les infos.
Autre chose, connais tu le generateur AM FM rohde et schwarz SMDA BN 41314? Je n’arrive pas à trouver le schéma électrique.
A+
ce que l’on a en R&S
R&S cette reference ne me dit rien
tu as une photo de cet appareil ?
trouve cela sur electrotanya
Il ressemble au bn 41311 du grand livre mais pas de schéma.
Le pb est le suivant:
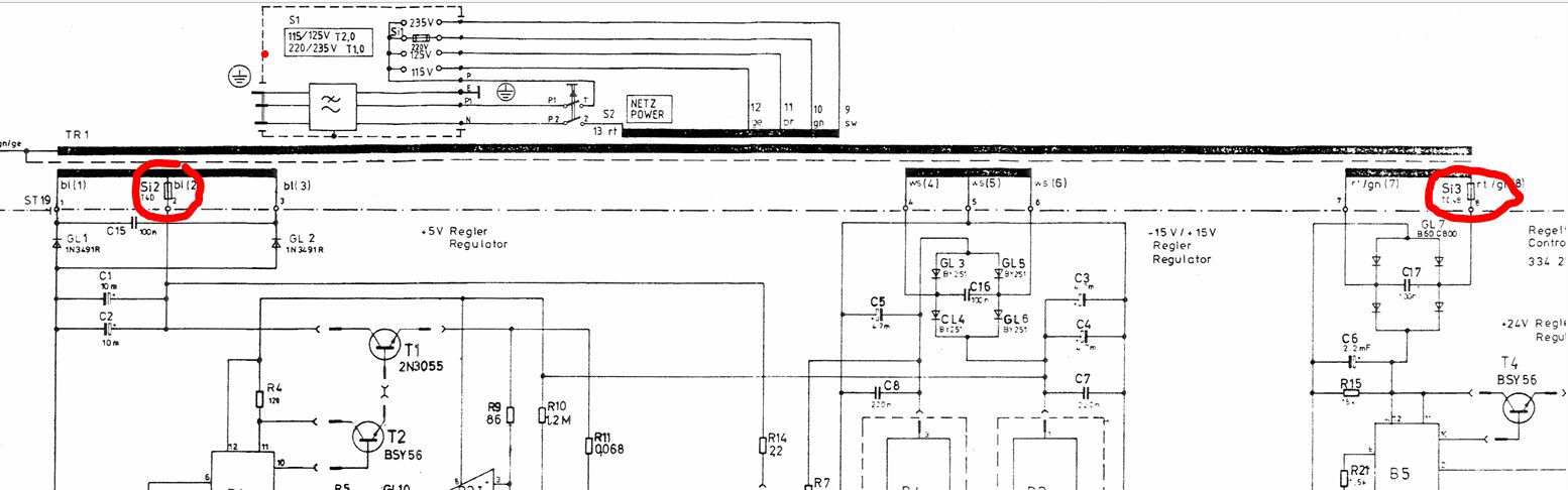
Deux resistances en// sur une borne du transfo. Elles sont totalement cramées.
Quelle valeur faut-il ?
A+
j’ai trouve ce schema mais est ce le bon ??
cela serait des diodes plutot que des resistances
le fichier trop gros pour le forum
le telecharger ici
Merci. Je vais regarder cela de près.
Je te tiens au courant.
Jacques
Bonjour
j’ai un SDMA, en principe avec la doc. je vais vérifier.
C’est un bon géné analogic, il reste dans BW=1 kHz sur 144.3 MHz après 15’ de chauffe, 73 jacques
pardon pour l’erreur ….. c’est bien SMDA. mon appareil porte l’indication SMDA-BN41314 et la doc
la doc est bien là :SMDA 100-4559.04
le schéma de l’alimentation porte la date 20.4.72, ce n’était juste pas le 1er Avril ![]()
Salut Rémy,
Non, ce n’est pas le bon, c’est celui du FAM, je lui ai fait une fiche et déplacé le schéma dans cette dernière.
J’ai trouvé deux manuels, un en allemand et un en anglais, pour le SMDA BN 41314 :
Les documents en lien ci-dessus sont maintenant dans la fiche de l’appareil correspondante.
Bonjour,
Je vois que l’info circule.
Le problème est le suivant:
Échauffement excessif d’un pont de diodes sur la 1ere carte power supply.
Le schéma électrique de l’alim me rendrait service.
L’avez vous et si oui, pouvez vous me le transmettre?
Merci.
73’
Jacques F-59129
@Jeanmonod_Henri-Louis
j’ai trouvé les memes docs que toi
le probleme est que aucune des docs trouvées on a un schema de l’appareil ou de son alimentation
je recherche encore mais ça commence a tourner en rond
Salut Rémy,
Éventuellement demander chez Rohde&Schwarz ou sur un forum de Radio-Amateurs.
J’ai deux documentations complètes de R&S mais pas pour cet appareil, ce sont des classeurs complets et même deux classeurs :
Par exemple pour le Polyskop, les schémas sont dans de deuxième classeur.
J’ai lancé un appel chez Rohde et Schwarz. Patientons.
73’
Bonjour,
quelque chose m’échappe sur le forum :
première ligne du premier msg = « merci pour les infos »
quelles infos ? il n’y a rien avant…à quoi ça fait référence ?
C’est un sujet scindé de celui-ci, car cela concerne un autre appareil :
le sujet a été scinde
pour separer les appareils de mesure du recepteur R1155
la 1er ligne du message repond a des infos sur le R1155
la suite parle du gene R&S
Ah oui, il fallait être devin ! comme je ne suivais pas l’autre discussion…
sinon les doc papier chez R&S sont hors de prix…
Doctsf (Modèles & Marques)
Annonces 




